Full Details
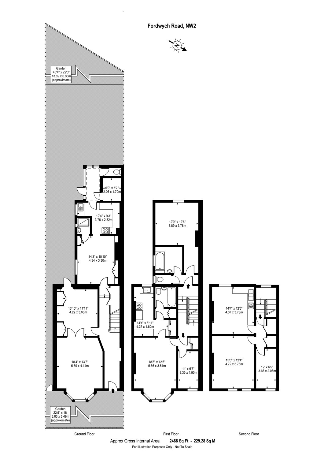
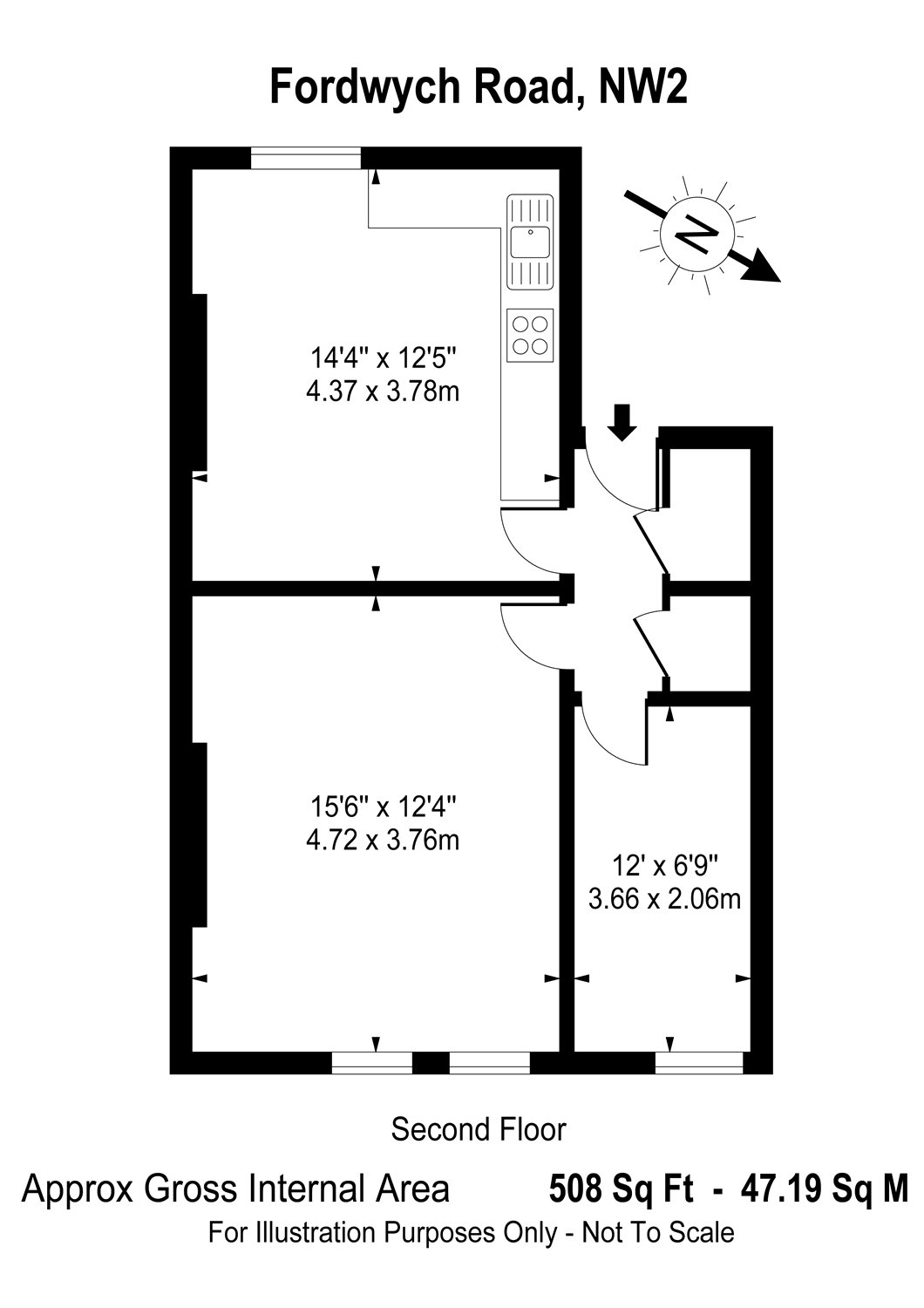
Currently arranged as four self-contained apartments and set within a semi-detached period residence, is this fantastic Investment opportunity ( Subject to the necessary planning consents). The ground floor currently offers approximately 985 sqft of un-modernised space, with access to a south-west facing garden. The first floor is divided between a rear facing studio apartment (currently let on an AST), along with a 495 sqft one bedroom apartment. The top floor of the house offers a further one bedroom apartment of approximately 510 sqft making up the overall current size of the house 2468 sqft.
Fordwych Road is equidistant from both Kilburn and West Hampstead with its multiple transport links and local bars and restaurants.
--
Property Features
- Development / Investment Opportunity
- Freehold
- Four self contained apartments
- South-West Facing Garden
- Superb Location




























